0 lands found in
For Sale
Gallery
Description
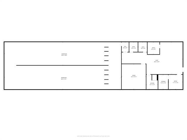
Prime commercial opportunity off 1187 and outside city limits! This 6,000 sq. ft. building offers versatile space with 2 offices, 2 bathrooms, a large training room, and a break room. The back 4,000 sq. ft. was previously used as a gun range but can be repurposed to fit your business needs. Ample parking is available at the front, side, and back of the building, with additional room to expand if desired. Located within 10 minutes of Burleson, Mansfield, Fort Worth, and Alvarado, this property provides unbeatable accessibility in a high-demand area. Commercial buildings in this location are hard to find—don’t miss your chance! Hurry and get your offer in NOW! LOCATION, LOCATION, LOCATION!!!
Interior Lot,Undivided
Property details
MLS Number: 21078091
Status: Active
Property Type: Commercial Sale
Subtype: Industrial
List Price: $850,000
Original List Price: $850,000
Land SQFT: 77,319
Acres: 1.7750
List Price/SQFT: $11.00
List Price/Acres $: $478,873
Will Subdivided: No
MUD District: 0
                                               
Additional details
School District:
Elementary
Middle or Junior School:
Junior High School:
High School:
                                                                                           
                                       
                                       
Direction
Please use GPS
Listed by HomeSmart
The database information herein is provided from and copyrighted by the North Texas Real Estate Information Systems, Inc. NTREIS data may not be reproduced or redistributed and is only for people viewing this site. All information provided is deemed reliable but is not guaranteed and should be independently verified. The advertisements herein are merely indications to bid and are not offers to sell which may be accepted. All properties are subject to prior sale or withdrawal. All rights are reserved by copyright. Copyright © NTREIS 2025. All Rights Reserved.
Monica James
817-798-0853
800-424-5088
TREC # 0660635
Speak:
Enter code: